交通运输工程实验室
作者:学院网站        发布时间:2014-03-25        阅读量:

交通运输工程实验室现有实验设备30余套,总面积约为174M2,承担了交通运输(物流)专业3门专业课程的实验教学任务。目前交通运输工程实验室远期规划--交通(物流)实训中心2期建设项目正处于申报阶段,建成后的交通(物流)实训中心能够模拟从供应商到零售商的整个物流过程,为学生提供一个良好的专业实训平台。

交通运输工程实验室仪器设备主要有:托盘货架、散货货架、整件货架、配送中心立体仓库(正处于规划申报阶段)、 挂壁式堆垛机(正处于规划申报阶段)、POS机(正处于规划申报阶段)、平移机、皮带机、链板机、顶升移载、万向牛目台、流利条线、托盘、料盒、电子标签辅助拣货系统、RFID射频辅助标签管理系统、盘点机、扫描枪、条码打印机、物流平板车(正处于规划申报阶段)、堆高叉车(正处于规划申报阶段)、液压托盘车(正处于规划申报阶段)、RF手持终端(正处于规划申报阶段)、手动式交通流量计数器(GF型台式,8单元)、手动式交通流量计数器(GF型台式,12单元)、手持雷达测速仪,以及运输管理信息系统、仓储管理信息系统、GPS/GIS管理系统、商业管理系统(正处于规划申报阶段)、配送管理系统(正处于规划申报阶段)、国际货代与报关管理系统(正处于规划申报阶段)、物流仿真软件(正处于规划申报阶段)等软件系统。

交通运输实验室目前主要承担物流设施规划与设计、仓储学、物流实训、交通工程、运输组织学等五门专业课程实验教学任务,目前可开出的实验项目包括物流设备与操作实验、配送中心订单处理实验、仓储出入库实验、货物分拣实验、商品库内管理实验、库存盘点实验、车辆调度及配载实验、车辆及货物跟踪实验、交通调查与分析实验、储管理系统综合模拟实验、运输管理系统综合模拟实验。实验室远期规划实施后,本实验室即可承担物流设施内部布局优化、物流设施规划效果动态仿真及优化、配送中心管理调度仿真及优化、物流系统配置仿真与优化等研究项目。

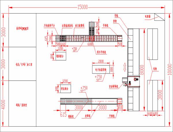
交通运输工程实验室(1期)平面布局如下:

交通运输工程实验室2期平面布局如下(正处于申报建设阶段):

上一篇: 流体力学实验室

下一篇: 工程测量实验室

联系我们

地址:广州市番禺区大学城外环西路100号广东工业大学实验2号楼

传真:020-39322511

办公室电话:020-39322527

邮箱:Email:tmjtxy@gdut.edu.cn

版权所有:3522vip浦京集团(中国)官方网站 粤ICP备05008833号